Old Station Place, Pipe Gate, TF9

See map

£700,000

  • 4 Bedrooms
  • 3 Bathrooms
  • 2 Receptions

KEY FEATURES

  • ACCOMPANIED VIEWINGS NOW AVAILABLE
  • Four Bedroom Detached House
  • Individual Architect Design
  • On Exclusive New Build Development
  • Highly Regarded Semi Rural Location
  • Plots Adjacent to Open Countryside
  • Appointed to High Specification

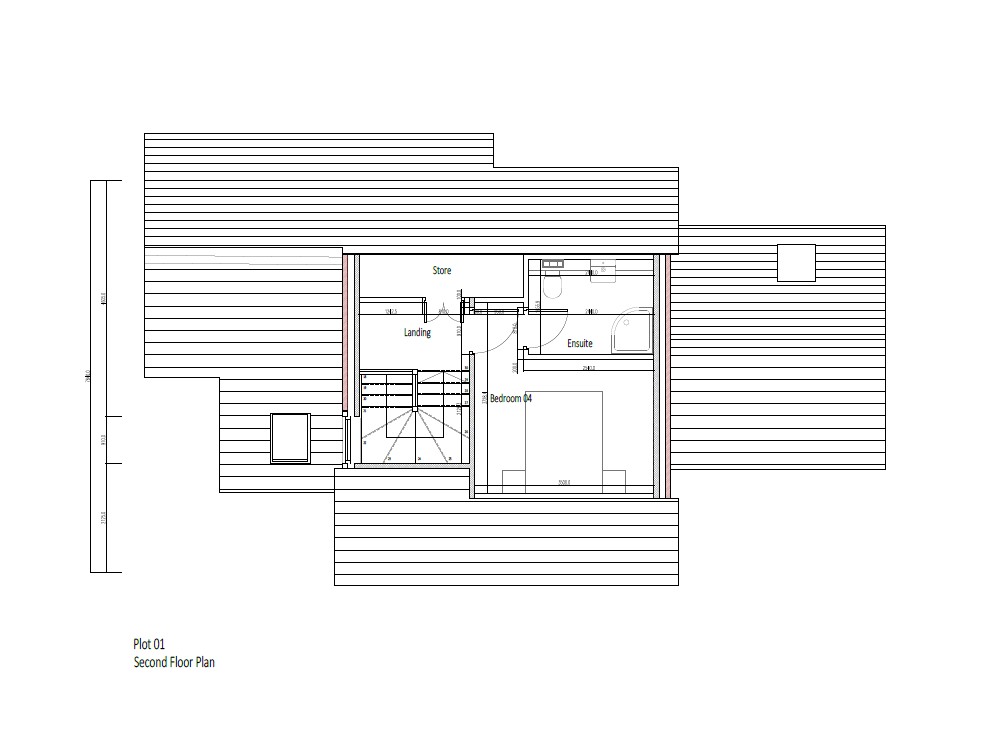
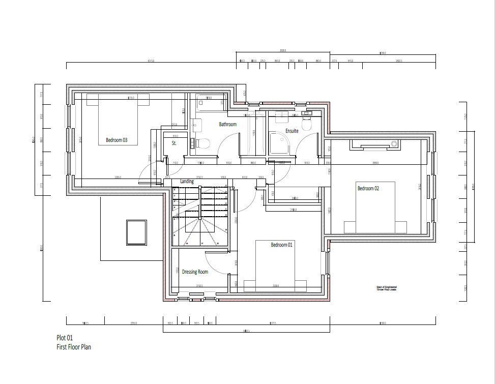
Floor plans

Floor plans

Floor plans

Property description

ACCOMPANIED VIEWINGS NOW AVAILABLE

Please note that some photos have been enhanced using AI.

The Old Station Place is an exclusive development of bespoke built four and five bedroom detached houses situated in a highly regarded and picturesque location surrounded by some beautiful countryside. Phase 1 of the development consists of four individual houses each with unique characteristics and all enjoying an outlook over the surrounding fields.

Accommodation is laid out over two or three storeys with spacious bedrooms and en-suite bathrooms to the first and second floors while the ground floor designs allow for a combination of open plan living spaces and separate reception rooms. Externally the houses will be approached along a private driveway with tegula paving and each will benefit from either a double garage or carport with good sized gardens enjoying a good degree of privacy.

These homes will be extremely energy efficient with air-source heat pumps and solar panels installed to each house with underfloor heating throughout the ground floor and radiators to the first floor.

The Acorns (Plot 1) is entered via a double height glazed entrance hall with oak and glass staircases to the first and second floors. An exceptionally spacious, open plan kitchen, living and dining space features wood burning stove and has bi-fold doors leading out to the South facing rear garden. A separate sitting room provides an ideal space for quiet nights in. To the first floor are three double bedrooms all with either dressing area or space for wardrobes while the principle bedrooms provides an en-suite shower room. Bedrooms two and three are served by a spacious family bathroom. On the top floor is an ideal guest suite with double bedroom and en-suite shower room.

Pipe Gate is located just outside the village of Woore and provides a friendly community with immediately local amenities including pubs, cricket and tennis clubs, post office and village store. The ever popular Bridgmere Garden Centre is just a mile or so down the road with the towns of Nantwich, Newcastle under Lyme and Market Drayton all within easy driving distance. For those needing to get further afield, junctions 15 and 16 of the M6 are each within approx. 15 minute drive.

Sitting on the Cheshire/Shropshire/Staffordshire borders, this area offers some breathtaking scenery in the surrounding countryside with excellent walks on offer for lovers of The Great Outdoors.

The first houses are due for completion early in 2026. On site viewings must be booked by appointment with the agents and all enquiries can be directed to John Follwell on 01782 615530 or john@follwells.co.uk

Property Details

tenure - freehold

water - Direct Main Waters

electricity - National Grid

heating - Solar Panels

Location

Old Station Place, Pipe Gate, TF9
TF9 4HU
Sale Type: For Sale
Ref #:6df59c2b-f093-407d-9bce-c6c19e426011

Similar Properties

Bwlchtocyn, Nr Abersoch

£650,000

  • 3
  • 1
  • 1

Old Station Place, Pipe Gate, TF9

£750,000

  • 5
  • 3
  • 2

Old Station Place, Pipe Gate, TF9

£650,000

  • 4
  • 2
  • 2

Harecastle Court, Newcastle Road, ST7

£695,000

  • 5
  • 4
  • 2

Harrowby Drive, Westlands, Newcastle ST5

£650,000

  • 4
  • 3
  • 3

Chapel Chorlton, Newcastle

£700,000

  • 4
  • 2
  • 3